OKLAHOMA UNIVERSITY MEDICAL CENTER HOSPITAL EXPANSION

This large hospital patient tower expansion was an extremely fast track project. Quick deadlines and flawless team coordination were the necessary ingredients of success. As a member of the design team I assisted with researching the climate, context, and environment of the new site.

Once a proper analysis was completed the design team and I immediately began developing massing studies, shaping the building in relationship to the existing hospital, programmatic constraints, site constraints, wind studies, resiliency, sustainability, aesthetics, accessibility, and many many other variables.

The form of both the podium and patient tower were revised many times but the final outcome was extremely well received by all parties involved. This project felt like everything was happening at once, but the chaos was well wrangled with clear and open lines of communication, a pleasant team disposition, and flexibility.

OKC-CROPPED.jpg
Towers-100.jpg
Schemes-100.jpg
Scheme 02-100.jpg
SIMPLE-01-01.jpg
SIMPLE-01-01.jpg
Section-100b.jpg
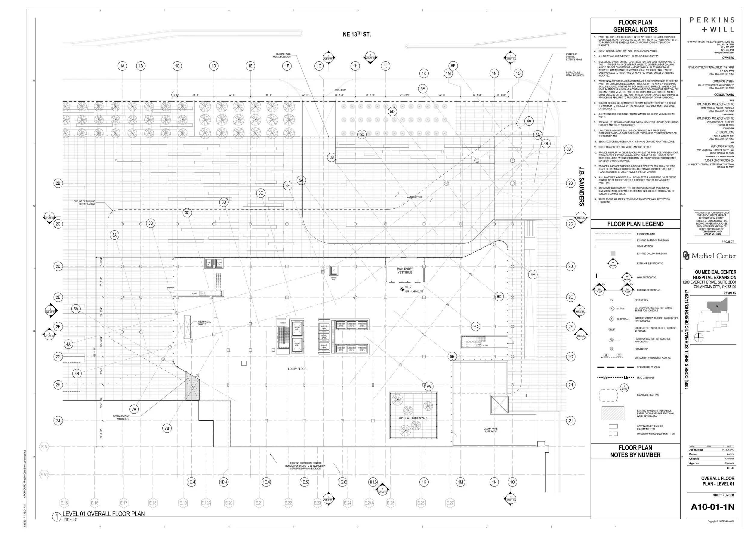
A10-01-1N - OVERALL FLOOR PLAN - LEVEL 01.jpg
A10-03-1N - OVERALL FLOOR PLAN - LEVEL 03 copy.jpg
A10-04-1N - OVERALL FLOOR PLAN - LEVEL 04 copy.jpg
A10-05-1N - OVERALL FLOOR PLAN - LEVELS 05 - 08 copy.jpg
100CS SD-2.jpg
[Number] - WALL SECTION-2.jpg
A20-01-1N - EXTERIOR ELEVATIONS SHEET 1 copy.jpg
A20-02-1N - EXTERIOR ELEVATIONS SHEET 2 copy.jpg
A21-01-1N - BUILDING SECTIONS SHEET 1 copy.jpg
A21-02-1N - BUILDING SECTIONS SHEET 2 copy.jpg
A31-01-1N - EXTERIOR WALL SECTIONS copy.jpg